Digest>June 2006

Photo Caption:

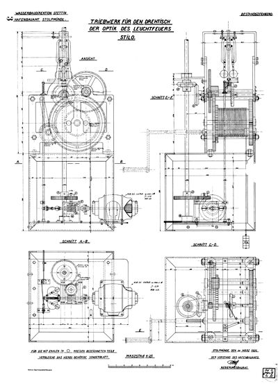
The liquefied gas system (31 July 1926) in this drawing shows how gas was supplied to the lantern and where the gas cylinder was located in the body of the tower. The external appearance of a lighthouse as well as its light should be readily distinguishable from those of other lighthouses. The most crucial aspect of a lighthouse's operation is the stability of its light characteristics.
Back to the edition of: June 2006

Story:

Stilo lighthouse Centenary
Back to the edition of: June 2006

All contents copyright © 1995-2025 by Lighthouse Digest®, Inc. No story, photograph, or any other item on this website may be reprinted or reproduced without the express permission of Lighthouse Digest. For contact information, click here.


USLHS Marker Fund


Lighthouse History
Research Institute














Contact Us   About Us   Copyright Foghorn Publishing, 1994- 2025   Lighthouse Facts     Lighthouse History